|
Проекты : КО-917 "Улинна"
Общее описание
Общая площадь дома - 800.4 м2
Площадь застройки - 409.3 м2
Пояснительная записка
Композиционное решение дома представляет собой единый центрический объем с многоуровневым внутренним пространством. Фасады не деляться на главные и второстепенные. Они относительно равнозначны, ассиметричны, но имеют осевую композицию.
В стилистике дома использованы элементы американского модерна (в частности творчества Ф.Л. Райта и Д. Салливана.
Тип фундамента - монолитная плита
Материал наружных стен - кирпич с утеплителем (640мм)
Перекрытия - монолитные ж/б
Крыша - мансардная
Покрытие кровли - мягкая-, металлочерепица
Наружная отделка стен - цветная фасадная штукатурка, детали - белая штукатурка, керамическая фасадная плитка
Цоколя - натуральный (искусственный) камень
Стоимость
Стоимость рабочей документации по проекту КО-917 "Улинна" - 68 000 руб.
Комментарий: Нет раздела ЭО
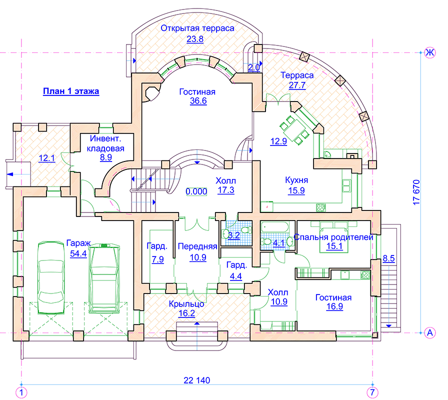
Поэтажные планы

Цоколь

1-ый этаж

2-ой этаж

Мансарда

Фасад 1

Фасад 2

Фасад 3

Фасад 4
Фотографии
|