|
Проекты : ОЗ-7 "Грек" (КО-914) баня
Площади
Площадь здания (приведённая) 1528,4 м2
Площадь перехода 53,0 м2
Площадь застройки 779,8 м2
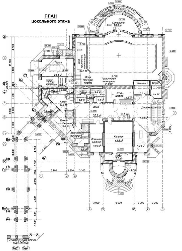
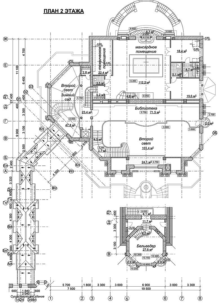
Общее описание
Здание оздоровительного комплекса, галерея - переход
Стены наружные -- кирпичные 640 мм толщиной с утеплителем
Перекрытия -- монолитные ж/б
Кровля -- скатная, мансардная (утеплённая), с деревянными стропилами по металлическим балкам
В данном проекте разработаны разделы: АР "Архитектурное решение", ВК "Водоснабжение и канализация", АД "Архитектурные детали", ТС "Технические решения", КР "Конструктивное решение"
Также см. проект «КО-914 "Грек"»
Стоимость
Стоимость рабочей документации по проекту ОЗ-7 "Грек" баня - 194 000 руб.
Комментарий: Разделы АР, КР ,ОВ, ВК, АД, ТС
Поэтажные планы

Цоколь

1-ый этаж

2-ой этаж

Разрез 1-1

Фасад в осях 1-8

Фасад в осях 8-1

Фасад в осях Ап-Ж

Фасад в осях Ж-Ап
Интерьеры
|