Лиза - Архитектурное бюро
 
О компании Услуги Проекты Фотогалерея Контакты Телефоны :
(495) 426-6233
8-916-671-4672
E-mail : arch.liza@mail.ru
Адрес:
м.Новоясеневская,
Новоясеневский проспект,
д.25
КАТАЛОГ ПРОЕКТОВ
Новинки
Новые проекты нашей студии...
Проекты домов

     До 400 м2
     От 600 м2

Проекты : КО-810 "Сам-Елюр"

Общее описание

Двухэтажный жилой дом с подвалом и мансардой.

Общая приведенная площадь                                    961,4 м2
(в том числе 200,4 м2 летних помещений, и мансардные помещения)
Жилая площадь                                                 167 м2
Площадь застройки                                          625 м2

Стены наружные - кирпичные 510 мм толщиной с утеплителем 50 мм снаружи. Внутренние несущие стены - кирпичные 380 мм толщиной.
Перекрытия - ж/б плиты.

В данном проекте разработаны разделы:
АР (за исключением спецификаций оконных и дверных проемов, и отделочных чертежей),КР "Конструктивные решения"


Поэтажные планы

Цоколь
Цоколь
1-ый этаж
1-ый этаж
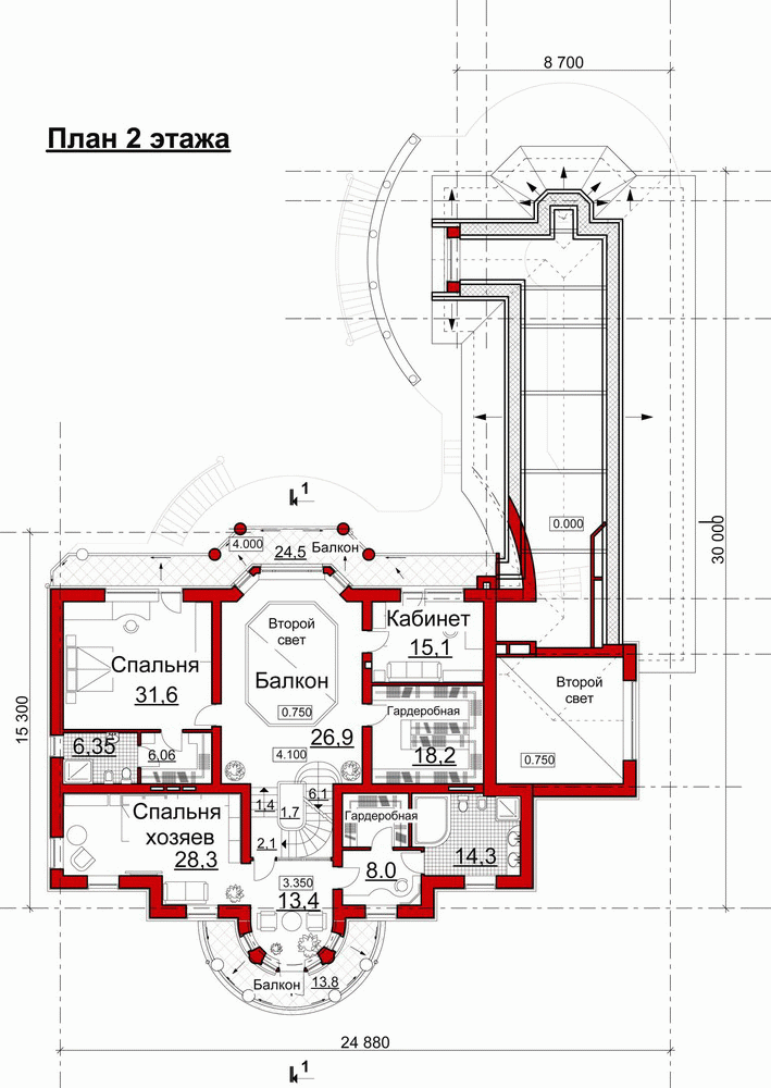
2-ой этаж
2-ой этаж
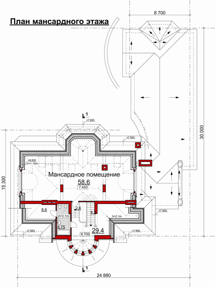
Мансарда
Мансарда
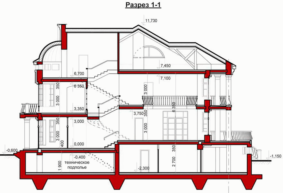
Разрез 1-1
Разрез 1-1
Фасад 1
Фасад 1
Фасад 2
Фасад 2

Модели





 

© 1992-2015, ООО «Арх. бюро "Лиза"»