|
Проекты : КО-809 "Иреал"
Общее описание
Общая площадь дома – 1102.8 м2
В стилистическом решении жилого дома использованы некоторые элементы, характерные для архитектуры Нормандии: облицовка первых этажей “рваным” камнем, деревянные кронштейны, башенки над входами. Развитие пространства дома происходит от входной части в глубину участка. На первом этаже находятся вестибюль, гостиная, холл, также столовая с выходами на крытую террасу и бассейн. Слева к входной группе примыкает гараж, связанный с хозяйственной частью. На втором этаже размещены: спальня хозяев, три детских, гостевая комната и спальня няни. В мансарде расположены два кабинета, детская комната и кладовая.
Стоимость
Стоимость рабочей документации по проекту КО-809 "Иреал" - 97 000 руб.
Комментарий: Нет разделов ОВ, ВК, ЭО
Поэтажные планы

Цоколь

1-ый этаж

2-ой этаж

Мансарда

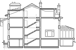
Разрез

Фасад 1

Фасад 2

Фасад 3

Фасад 4
|