|
Проекты : КО-808 "ДоброМ"
Общее описание
Общая площадь (приведённая) 311.5 м2 Площадь застройки 239.2 м2
Тип фундамента – ленточный сборный Материал наружных стен – кирпич с утеплителем Перекрытия – сборные с монолитными участками Крыша – чердачная Покрытие кровли – мягкая черепица Наружная отделка стен – штукатурка, облицовочный кирпич Цоколя – натуральный (искусственный) камень
Стоимость
Стоимость рабочей документации по проекту КО-808 "ДоброМ" - 42 000 руб.
Комментарий: Нет раздела ЭО
Поэтажные планы

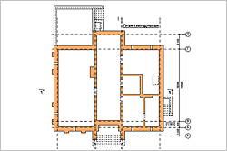
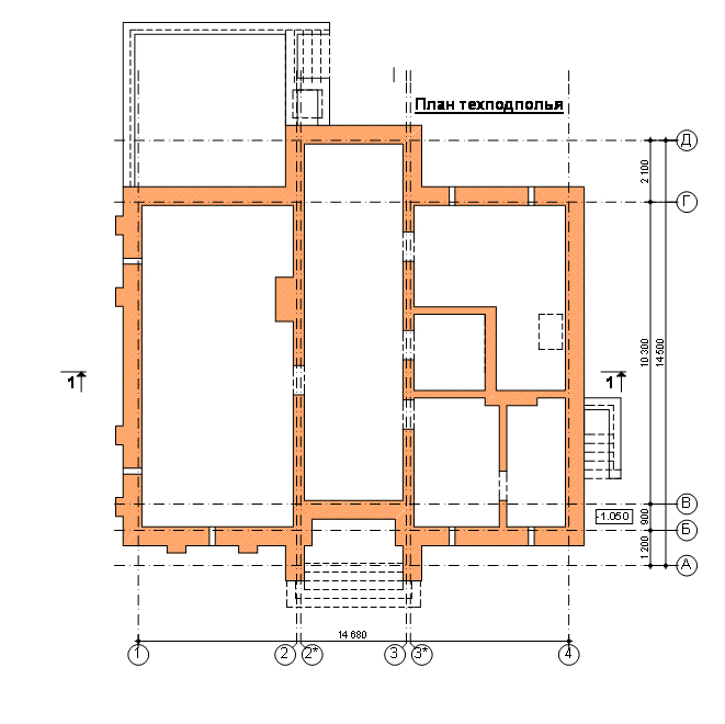
Техподполье

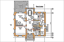
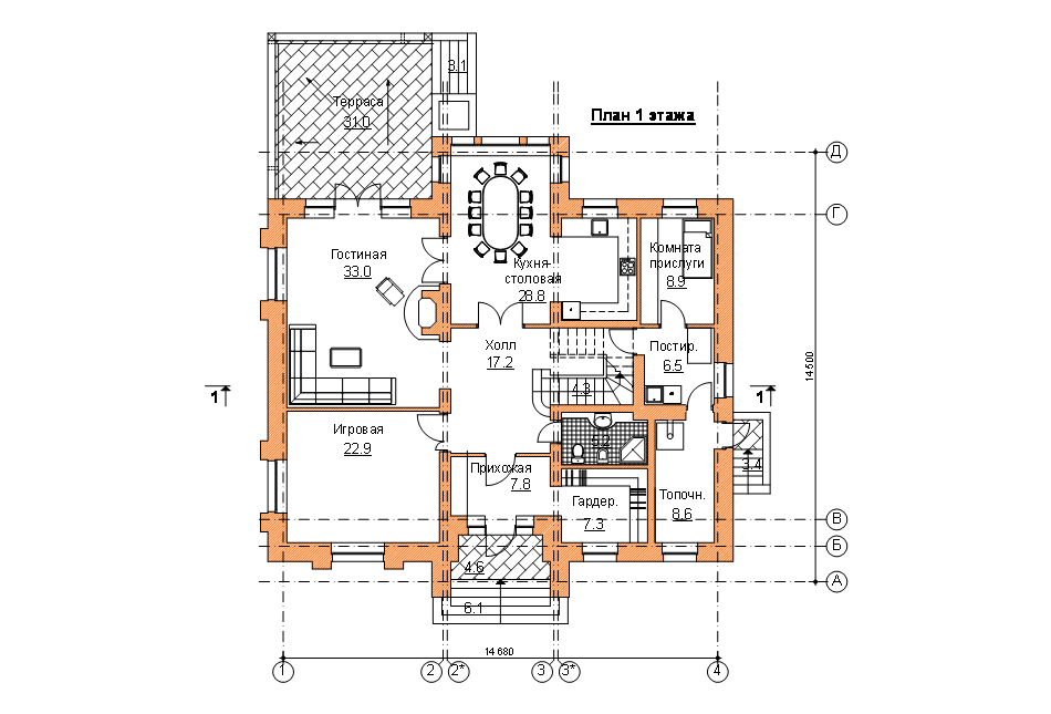
1-ый этаж

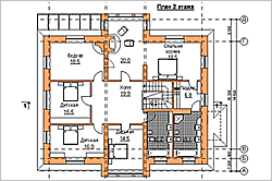
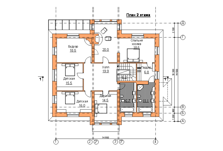
2-ой этаж

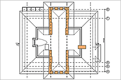
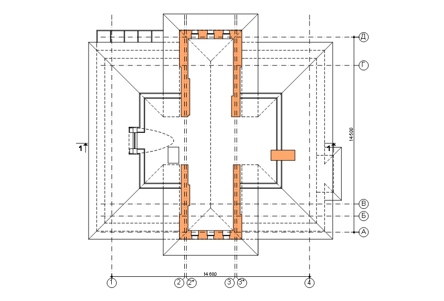
Мансарда

Разрез

Фасад в осях 1-4

Фасад в осях 4-1

Фасад в осях А-Д

Фасад в осях Д-А
Фотографии
|