|
Проекты : КО-805 "Бао"
Общее описание
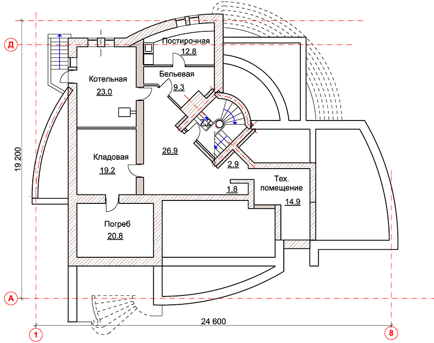
Площадь дома - 717.3 м2 в том числе цокольный этаж 153.7 м2
Общая площадь (приведённая) - 628.7 м2
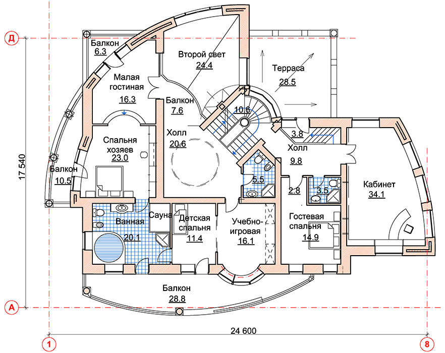
Площадь мансарды - 207.5 м2
Площадь застройки - 398.3 м2
8-комнаный жилой дом с гаражом на 2 а/м, имеющий сложную конфигурацию плана, спроектирован в стиле т. н. "Постмодерна".
Пространственно богатый интерьер в сочетании с функциональностью планировки делает дом уютным и комфортным.
Тип фундамента - сборные ленточные
Материал наружных стен - кирпич с утеплителем
Перекрытия - сборные
Крыша - мансардная
Покрытие кровли - мягкая-, металлочерепица
Наружная отделка стен - штукатурка
Цоколя - натуральный (искусственный) камень
Стоимость
Стоимость рабочей документации по проекту КО-805 "Бао" - 78 000 руб.
Поэтажные планы

Цоколь

1-ый этаж

2-ой этаж

Мансарда

Фасад 1

Фасад 2

Фасад 3

Фасад 4
Фотографии
Интерьеры
|