|
Проекты : ОЗ-9 "Ива" (ДО-731) баня
Общее описание
Общая площадь (приведённая) 116,70м2
Площадь застройки 88,00м2
Стены наружные и внутренние -- клеёный брус 300х300 мм.
Фундаменты -- буро-набивные сваи (D=300 мм.)
Перекрытия -- цокольное - монолитный ж/б, 1 этаж - дощатый настил по деревянным балкам
Кровля -- скатная, мансардная (утеплённая), с деревянными стропилами
Лестницы -- деревянные
Окна -- деревянные или деревоаллюминиевые с двухкамерными стеклопакетами
Двери -- деревянные
Наружная отделка -- цоколь: натуральный камень.
Данный проект, по просьбе Заказчика, выполнен в сокращённом объёме.
Разработаны разделы АР (архитектурное решение) и КР (конструктивное решение) за исключением развёрток и конструкций брусовых стен.
Брусовые стены выполняются подрядчиком на основании развёрток и конструкций, разработанных фирмой-изготовителем сруба.
Не разрабатывались разделы инженерного оборудования: ВК (водоснабжение и канализация), ОВ (отопление и вентиляция), ЭО (электрооборудование) и СС (слаботочные системы).
Также см. проект «ДО-731 "Ива"»
Стоимость
Стоимость рабочей документации по проекту ОЗ-9 "Ива" баня - 27 000 руб.
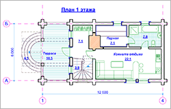
Поэтажные планы

1-ый этаж

2-ой этаж

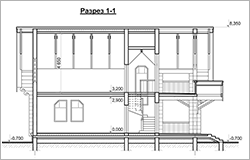
Разрез
Модели
|