|
Проекты : ДО-730 "Лемирт-2"
Общее описание
Площади:
Общая площадь – 528.70 м2
Строительная площадь – 572.9 м2
Жилая площадь – 271.5 м2
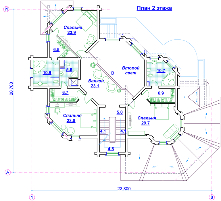
Габариты: 22.80х20.70
Фундамент: буро-набивные сваи (D=300мм)
Стены: клееный брус 300х300
Перекрытия: деревянные балки
Мягкая черепица.
Разделы: АР, КР.
Семикомнатный жилой дом. (Лемирт-дом).
Также см. проект «ОЗ-8 "Лемирт-2" баня»
Стоимость
Стоимость рабочей документации по проекту ДО-730 "Лемирт-2" - 53 000 руб.
Поэтажные планы

1-ый этаж

2-ой этаж

Мансарда

Разрез

Фасад 1-8

Фасад 8-1

Фасад А-И

Фасад И-А
Модели
Фотографии
|