|
Проекты : КО-729 "Лемирт"
Общее описание
Общая площадь........................327,90 м2
Жилая площадь...........................102,60 м2
Площадь застройки.......................216,30 м2
Этажность...............................2
Пояснительная записка
Фундаменты:......монолитные ленты
Стены:...........кирпичные с утеплителем, толщ. 640 мм.
Перекрытия:......сборные с монолитными участками
Кровля:..........скатная, мансардная; покрытие - гибкая или металлочерепица
Фасады:..........натуральный камень, цветная штукатурка;
детали: белая штукатурка, декоративная мозайка,
деревянные подкосы
Также см. проект «ОЗ-6 "Лемирт" баня»
Стоимость
Стоимость рабочей документации по проекту КО-729 "Лемирт" - 65 000 руб.
Комментарий: Нет раздела ЭО
Поэтажные планы

1-ый этаж

2-ой этаж

Мансарда

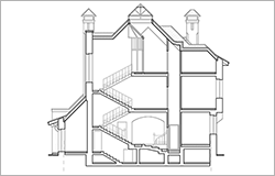
Разрез

Фасад 1-8

Фасад 8-1

Фасад А-Д

Фасад Д-A
Эскизы
Фотографии
Модели
|