|
Проекты : КО-727 "Салливан"
Общее описание
Площадь здания (строительная) - 507,3 м2 Общая площадь - 641.0 м2 Жилая площадь - 2205 м2 Площадь застройки - 354.6 м2
Пояснительная записка
Стены наружные -- кирпичные с утеплителем (640 мм).
Стены внутренние несущие -- кирпичные 380 мм толщиной
Фундаменты -- монолитная ж/б плита
Перекрытия -- монолитные ж/б
Кровля -- скатная, чердачная (утеплённая), с деревянными стропилами по металлическим балкам
Лестницы -- монолитные ж/б
Окна -- деревянные или деревоаллюминиевые с двухкамерными стеклопакетами
Двери -- деревянные
В отделке фасадов предполагается использование белой, светло-серой и светло-терракотовой штукатурки и рваного камня (доломита или песчаника). Кровля - металлочерепица серо-синего цвета.
Стоимость
Стоимость рабочей документации по проекту КО-727 "Салливан" - 78 000 руб.
Комментарий: Нет раздела ЭО
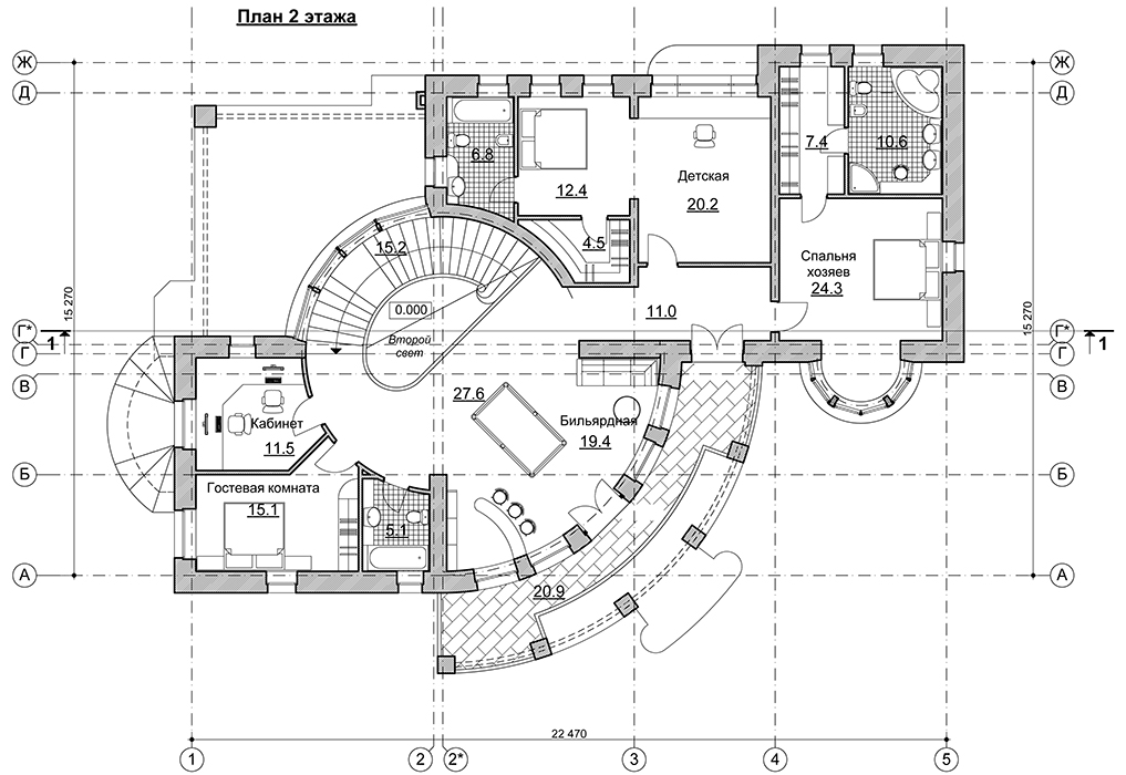
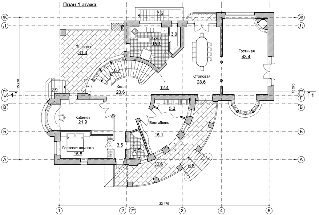
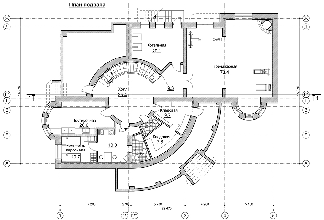
Поэтажные планы

Подвал

1-ый этаж

2-ой этаж

Мансарда

Разрез
Фасады
Модели
|