|
Проекты : КО-726 "Ольгана"
Общее описание
Общая площадь - 1 143,1 м2
Площадь застройки - 595,8 м2
Пояснительная записка
Образ здания, стилистически, можно определить как "постмодерн", с аллюзорной направленностью в сторону "нео-классицизма" конца 19, начала 20 в.в. Для проекта жилого дома почти центрическая композиция с максимальным раскрытием всех основных помещений на юг.
Фундаменты - монолитная плита
Перекрытия - монолитные
Стены - кирпичные с утеплителем толщиной 640мм.
Перемычки - сборные (монолитные)
Кровля - чердачная скатная, с деревянными стропилами
Покрытие - мягкая-, металлочерепица
Лестницы - монолитные ж.б. с облицовкой природным камнем.
Стоимость
Стоимость рабочей документации по проекту КО-726 "Ольгана" - 98 000 руб.
Комментарий: Нет раздела ЭО
Поэтажные планы

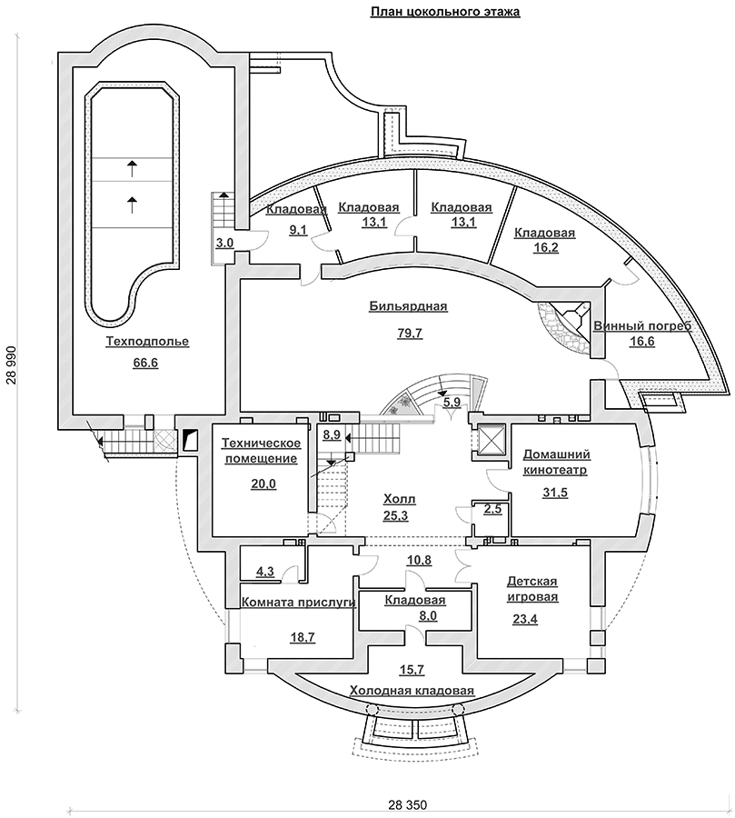
Цоколь

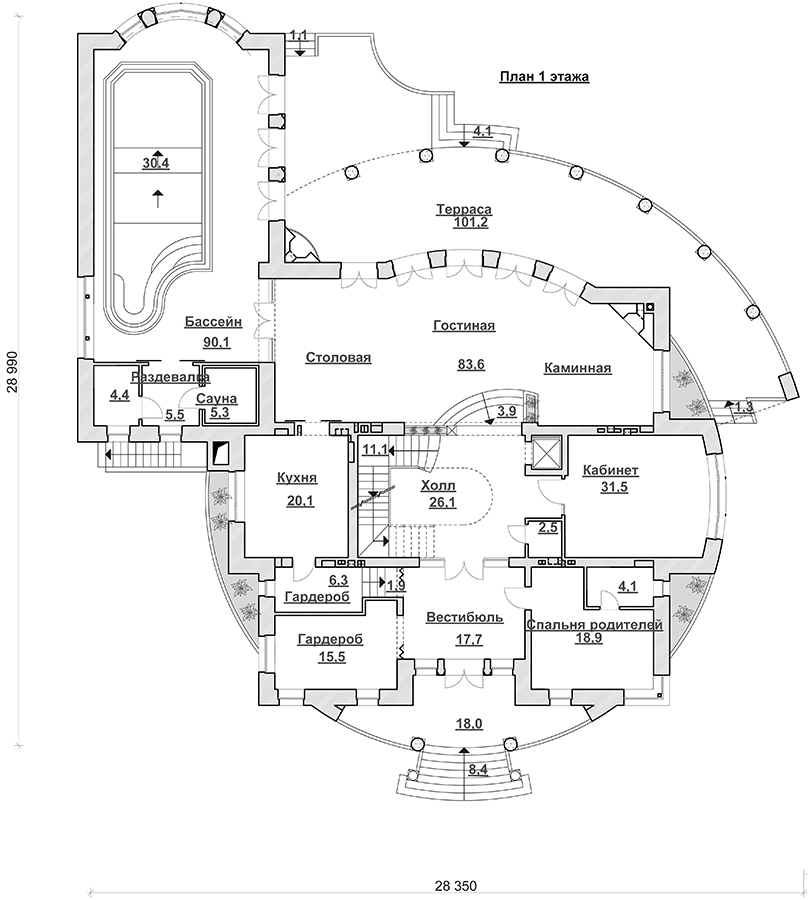
1-ый этаж

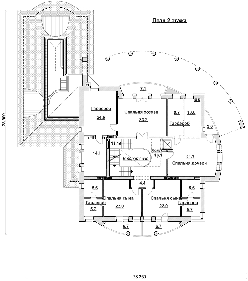
2-ой этаж

Мансарда

Разрез

Фасад 1

Фасад 2

Фасад 3

Фасад 4
Эскизы
Фотографии
Интерьеры
|