|
Проекты : КО-725 "Ясер"
Общее описание
Строительная площадь дома.................600.1 м2 Общая площадь (приведённая)...............532.8 м2 Площадь застройки.........................324.0 м2
Пояснительная записка
В архитектурном решении дома использованы мотивы индивидуальных жилых домов северной Европы. В отделке дова использованы: облицовка "Блокхаузом" (1/2 бревна), штукатурка и естественный камень в сочетании с деревянными ограждениями балконов и лобовыми досками, покрытыми слаботонированным лаком.
Тип фундамента - монолитная плита Материал наружных стен - кирпич с утеплителем Перекрытия - сборные Крыша - чердачная Покрытие кровли - мягкая-, металлочерепица Наружная отделка стен - штукатурка Цоколя - натуральный (искусственный) камень
Стоимость
Стоимость рабочей документации по проекту КО-725 "Ясер" - 63 000 руб.
Поэтажные планы

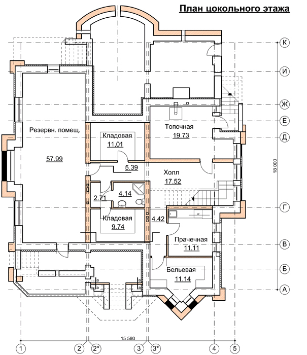
Цоколь

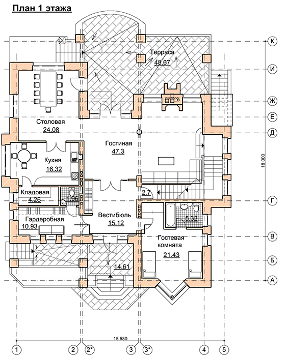
1-ый этаж

2-ой этаж

Фасад 1

Фасад 2

Фасад 3

Фасад 4
Фотографии
|