Лиза - Архитектурное бюро
 
О компании Услуги Проекты Фотогалерея Контакты Телефоны :
(495) 426-6233
8-916-671-4672
E-mail : arch.liza@mail.ru
Адрес:
м.Новоясеневская,
Новоясеневский проспект,
д.25
КАТАЛОГ ПРОЕКТОВ
Новинки
Новые проекты нашей студии...
Проекты домов

     До 400 м2
     От 600 м2

Проекты : КО-724 "Галан"

Общее описание

Площадь дома 497.0 м2
Общая площадь (приведённая) 627.8 м2
Площадь застройки 433.2 м2

Жилой дом представляет собой -Г-образный в плане объем, с основной двухэтажной частью и одноэтажным объемом гаража. Современные пластичные формы фасада и необычная диагональная композиция, со входом с угла придает дому ярко выраженный индивидуальный характер.
Тип фундамента - монолитная плита
Материал наружных стен - кирпич с утеплителем
Перекрытия - сборные
Крыша - чердачная
Покрытие кровли - керамическая черепица
Наружная отделка стен - штукатурка
Цоколя - натуральный (искусственный) камень


Стоимость

Стоимость рабочей документации по проекту КО-724 "Галан" - 58 000 руб.
Комментарий: Нет раздела ЭО


Поэтажные планы

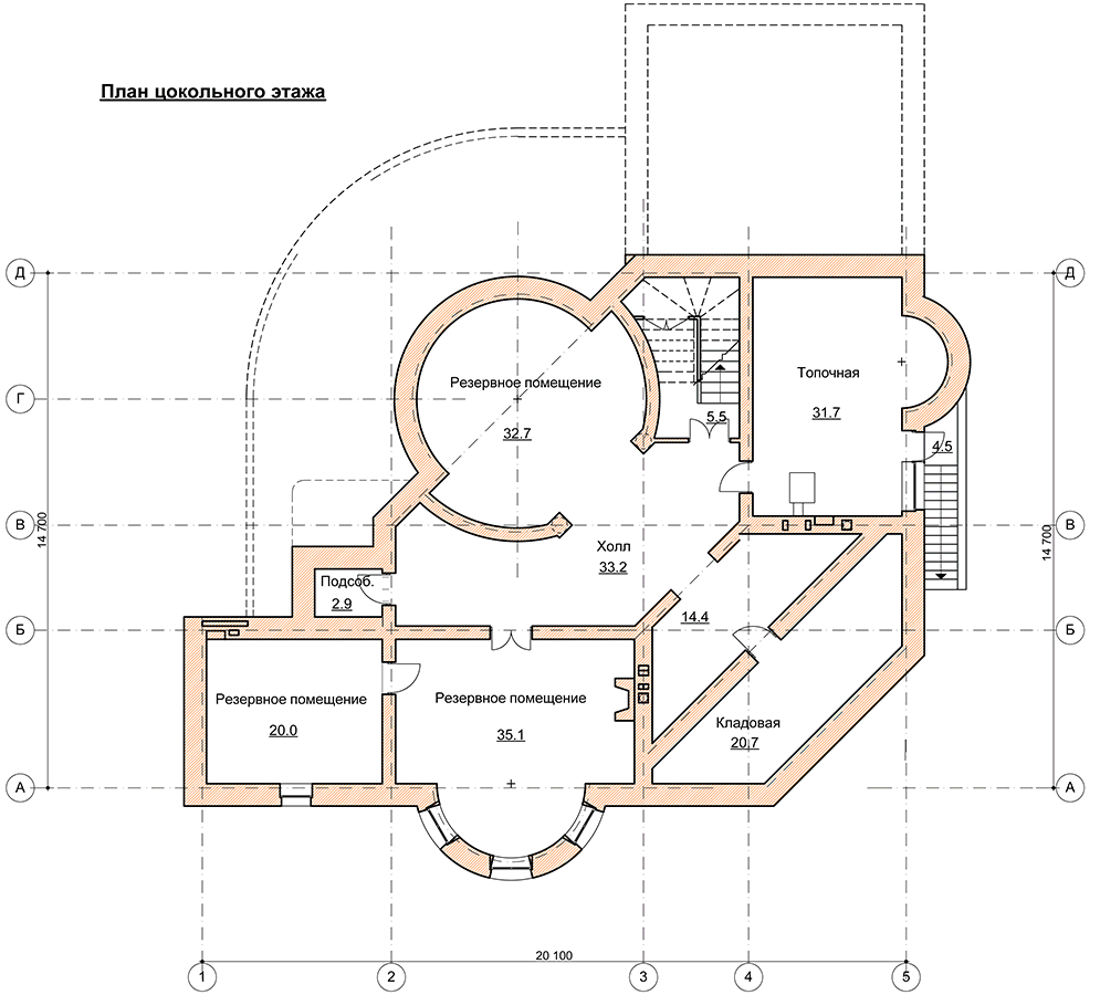
Цоколь
Цоколь
1-ый этаж
1-ый этаж
2-ой этаж
2-ой этаж

Фасад 1
Фасад 1
Фасад 2
Фасад 2
Фасад 3
Фасад 3
Фасад 4
Фасад 4




 

© 1992-2015, ООО «Арх. бюро "Лиза"»