... уже
82
выполненных проекта
Телефоны
:
(495) 426-6233
8-916-671-4672
E-mail
:
arch.liza@mail.ru
Адрес
:
м.Новоясеневская,
Новоясеневский проспект,
д.25
КАТАЛОГ
ПРОЕКТОВ
Новинки
Новые проекты нашей студии...
Проекты домов
До 400 м
2
От 400 до 600 м
2
От 600 м
2
Таунхаусы
Поселки
Гаражи
Бассейны и бани
Интерьеры
Церковная архитектура
Малые формы
Проекты :
КО-724-2 "Лемар"
Общее описание
Эскизный проект
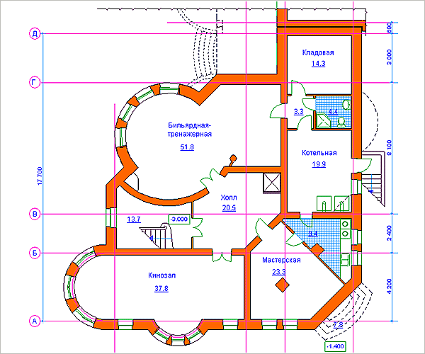
Поэтажные планы
Цоколь
1-ый этаж
2-ой этаж
Мансарда
© 1992-2015, ООО «Арх. бюро "Лиза"»