|
Проекты : КО-722 "Райт"
Общее описание
Площадь дома 501.3 м2
Общая площадь (приведенная) 455.3 м2
Площадь застройки 402.5 м2
Пояснительная записка
В решении фасадов жилого дома использованы мотивы творчества американского архитектора Ф.Л. Райта начала 20 века: относительно плоские крыши с большим "выносом" карниза, пластичная линия цокольной части, отделка естественным камнем и керамической плиткой.
Концепцию предлагаемого проекта можно было бы определить как планировочное разделение общих и индивидуальных помещений при зрительном объединении пространства дома в единое целое.
Жилой дом решен со смещением уровней в пол-этажа вдоль оси главного фасада,за счёт этого появляется чёткое деление внутренего пространства на функциональные группы: 1) Дневного пребывания- на "нулевой" отметке первого этажа; 2) Спальную- на втором этаже; 3) Хозяйственную, включающую в себя гараж, котельную и прачечную на уровне земли.
Фундаменты - монолитная ж/б лента
Стены наружные - кирпичные с утеплителем, толщиной 640 мм
Стены внутренние несущие - кирпичные 380 мм толщиной
Перекрытия - сборно-монолитные
Крыша - частично мансардная, скатная, покрытие - метало- или мягкая черепица
Стоимость
Стоимость рабочей документации по проекту КО-722 "Райт" - 82 000 руб.
Поэтажные планы

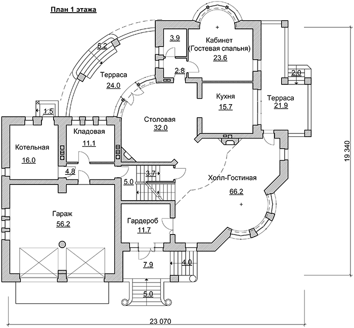
1-ый этаж

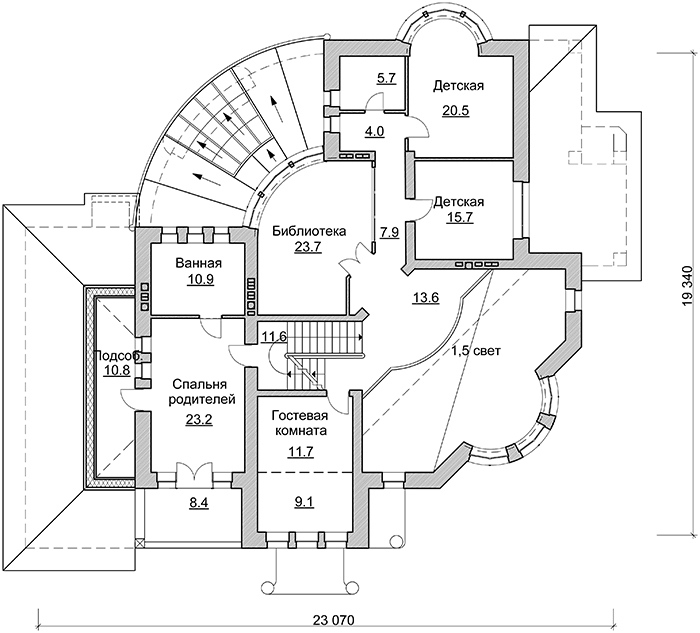
2-ой этаж

Разрез

Фасад 1

Фасад 2

Фасад 3

Фасад 4
Фотографии
|