|
Проекты : КО-720 "Вялен"
Общее описание
7-комнатный жилой дом
Общая площадь.........................672.3 м2 Жилая площадь.........................273.0 м2 Площадь застройки.....................328.6 м2
Пояснительная записка
В стилистическом решении фасадов использованы мотивы русского модерна - архитектурного стиля модного в конце XIX - начале ХХ веков и получившего распространение в последние годы. Композиционным и коммуникационным центром дома является двухсветный холл с кольцевым балконом. На первом этаже помещения связаны между собой в единое пространство, что зрительно увеличивает его размеры и обогащает интерьер дома.
Фундаменты - монолитная плита, монолитные стены Перекрытия - сборные с монолитными участками Стены - кирпичные с утеплителем толщиной 510мм. Перемычки - сборные (монолитные) Кровля - чердачная и, частично совмещенная, скатная, деревянно-металлическая конструкция Покрытие - мягкая-, металлочерепица Лестницы - монолитные ж.б. с облицовкой природным камнем.
Стоимость
Стоимость рабочей документации по проекту КО-720 "Вялен" - 85 000 руб.
Поэтажные планы

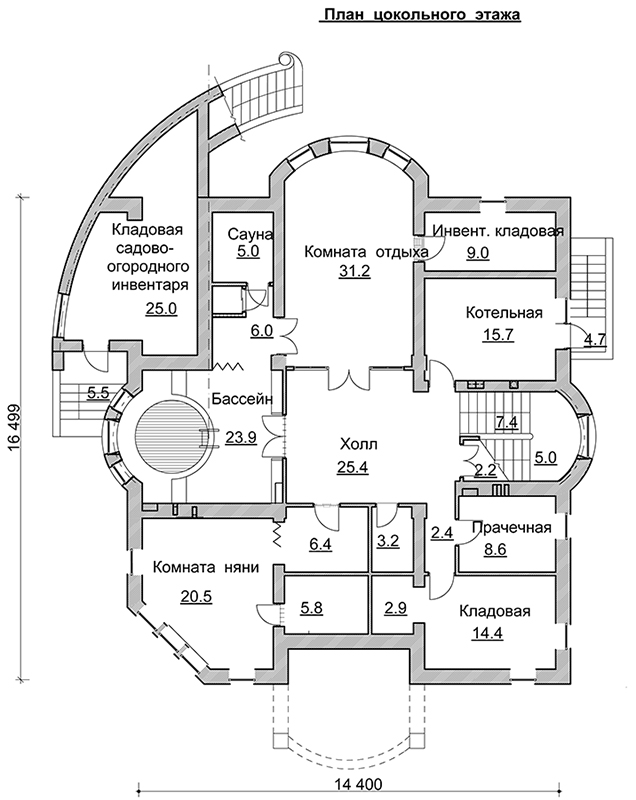
Цоколь

1-ый этаж

2-ой этаж

Разрез

Фасад 1

Фасад 2

Фасад 3

Фасад 4
Фотографии
Интерьеры
|