Лиза - Архитектурное бюро
 
О компании Услуги Проекты Фотогалерея Контакты Телефоны :
(495) 426-6233
8-916-671-4672
E-mail : arch.liza@mail.ru
Адрес:
м.Новоясеневская,
Новоясеневский проспект,
д.25
КАТАЛОГ ПРОЕКТОВ
Новинки
Новые проекты нашей студии...
Проекты домов

     До 400 м2
     От 600 м2

Проекты : КО-720-з+г "ГарВялен"

Общее описание

Общая площадь - 786.2 м2
Площадь застройки – 422.9 м2

Тип фундамента – монолитная плита
Материал наружных стен – кирпич с утеплителем (510мм)
Перекрытия – сборные ж/б плиты
Крыша – мансардная
Покрытие кровли – мягкая-, металлочерепица
Наружная отделка стен – цветная фасадная штукатурка, керамическая фасадная плитка
Цоколя – натуральный (искусственный) камень


Стоимость

Стоимость рабочей документации по проекту КО-720-з+г "ГарВялен" - 89 000 руб.
Комментарий: Нет разделов ОВ, ВК, ЭО


Поэтажные планы

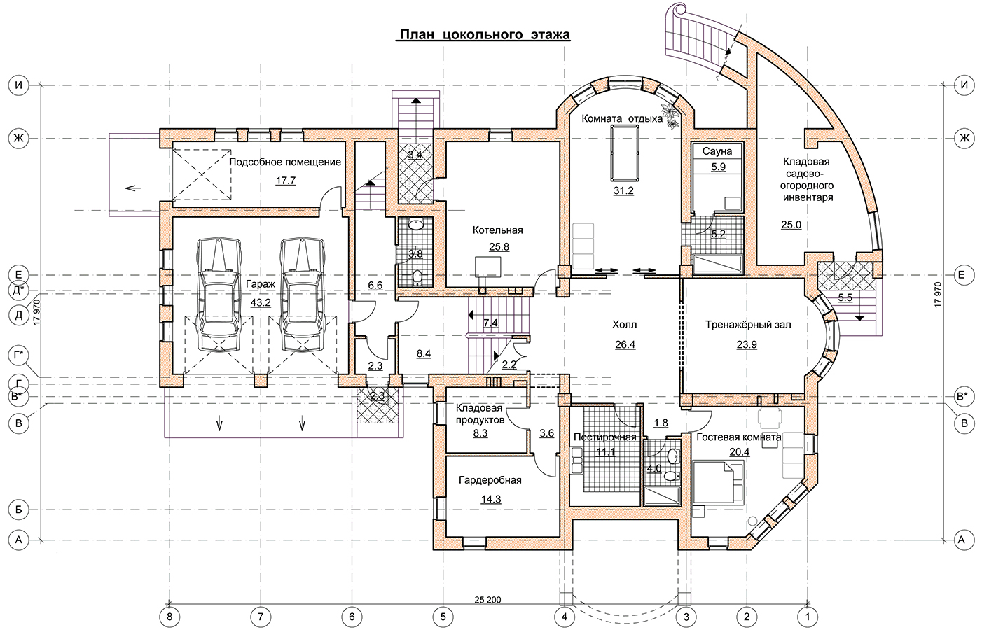
Цоколь
Цоколь
1-ый этаж
1-ый этаж
2-ой этаж
2-ой этаж
Разрез 2-2
Разрез 2-2
Фасад 1
Фасад 1
Фасад 2
Фасад 2
Фасад 3 width=
Фасад 3
Фасад 4
Фасад 4

Фотографии





 

© 1992-2015, ООО «Арх. бюро "Лиза"»