|
Проекты : КО-717 "Марат"
Общее описание
Общая площадь - 307,9 м2
Жилая площадь - 159,8 м2
Площадь застройки - 288,0 м2
Пояснительная записка
7-комнатный жилой дом был спроектирован для узкого, вытянутого в глубину участка, расположенного в густом хвойном лесу, что обусловило конфигурацию здания и его объемно-планировочное решение. В стилистике дома использованы мотивы австрийского и швейцарского горного жилища типа "шале".
Фундаменты - монолитная плита
Перекрытия - сборные с монолитными участками
Стены - кирпичные с утеплителем толщиной 640мм. :
Перемычки - сборные (монолитные)
Кровля - чердачная, скатная, с деревянными стропилами
Покрытие - мягкая-, металлочерепица
Лестницы - монолитные ж.б. с облицовкой природным камнем.
Стоимость
Стоимость рабочей документации по проекту КО-717 "Марат" - 38 000 руб.
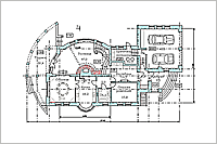
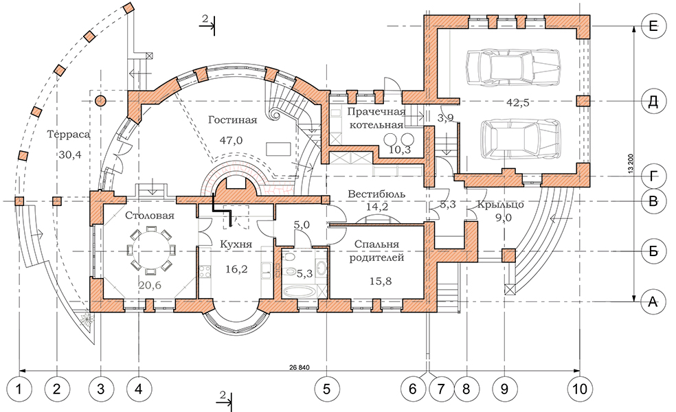
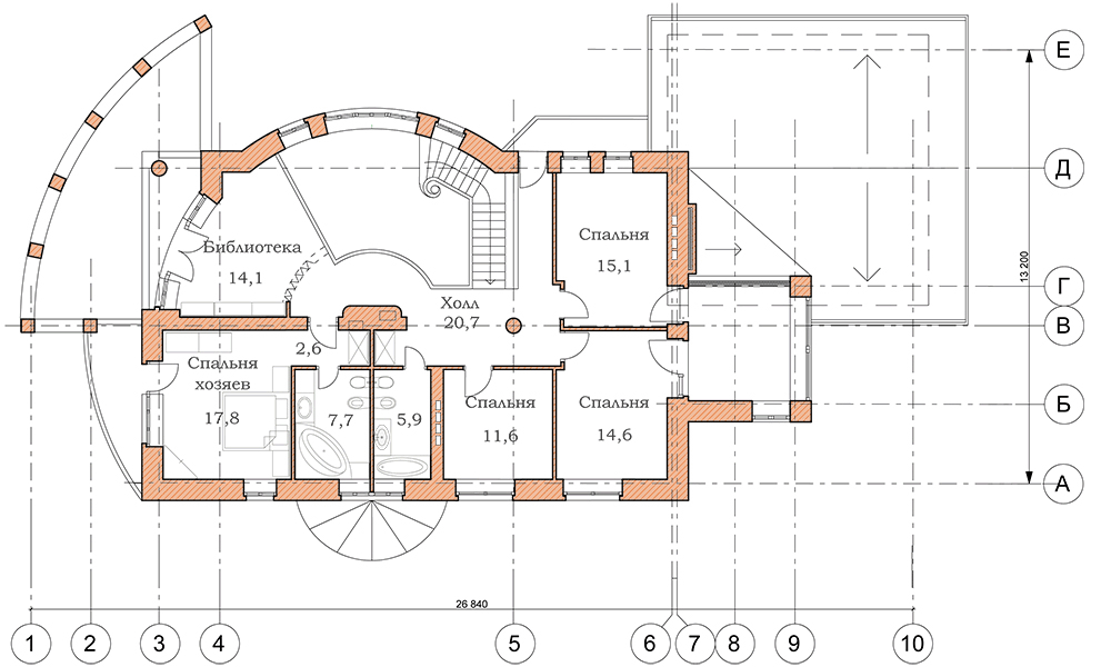
Поэтажные планы

1-ый этаж

2-ой этаж

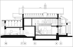
Разрез

Фасад 1

Фасад 2

Фасад 3

Фасад 4
|