|
Проекты : КО-711 "Мельпомена"
Общее описание
Общая площадь...........................453 м2
Жилая площадь...........................194,0 м2
Площадь застройки.......................247,5 м2
Пояснительная записка
Архитектура двухэтажного загородного жилого дома с пристроенным гаражом напоминает неовикторианскую или неогеоргианскую стилизацию Нового Света.
Фундаменты - ленточные сборные
Перекрытия - сборные с монолитными участками
Стены - кирпичные с утеплителем толщиной 640мм. :
Перемычки - сборные (монолитные)
Кровля - чердачная, скатная, с деревянными стропилами
Покрытие - мягкая-, металлочерепица
Лестницы - монолитные ж.б. с облицовкой природным камнем.
Стоимость
Стоимость рабочей документации по проекту КО-711 "Мельпомена" - 58 000 руб.
Поэтажные планы

Цоколь

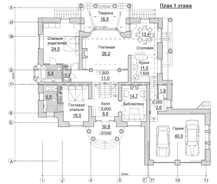
1-ый этаж

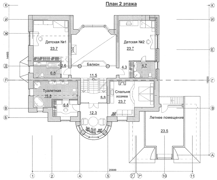
2-ой этаж

Разрез

Фасад 1

Фасад 2

Фасад 3

Фасад 4
Фотографии
|