|
Проекты : КО-710 "Андалузия"
Общее описание
Общая площадь.........................287 м2 Жилая площадь.........................116,2 м2 Площадь застройки.....................230,6 м2
Пояснительная записка
В проекте жилого дома использованы некоторые формальные элементы т.н. викторианского стиля Нового Света. Черты неовикторианского архитектурного направления, характерного для США и Канады, прослеживаются и в планировочной схеме здания. Местные условия привнесли в архитектуру дома черты подмосковной усадьбы: ориентацию главного входа и наиболее значительных помещений на южную сторону горизонта, декоративные элементы, характерные для русского ампира и пр.
Фундаменты - сборные жб Перекрытия - сборные с монолитными участками Стены - кирпичные с утеплителем толщиной 640мм. Перемычки - сборные (монолитные) Кровля - чердачная, скатная, с деревянными стропилами Покрытие - мягкая-, металлочерепица Лестница - деревянная.
Стоимость
Стоимость рабочей документации по проекту КО-710 "Андалузия" - 35 000 руб.
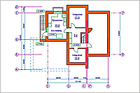
Поэтажные планы

Цоколь

1-ый этаж

2-ой этаж

Фасад 1

Фасад 2

Фасад 3

Фасад 4
Фотографии
|