|
Проекты : КО-617-2 "Андал Шу"
Общее описание
Общая площадь дома - 393.2 м2.
Фундаменты – монолитная плита
Стены наружные – кирпичные с утеплителем, толщиной 510 мм
Стены внутренние несущие – кирпичные 380 мм толщиной
Перекрытия – сборные
Крыша –чердачная, скатная, покрытие – металлочерепица
Стоимость
Стоимость рабочей документации по проекту КО-617-2 "Андал-Шу" - 65 500 руб.
Комментарий: Нет раздела ЭО
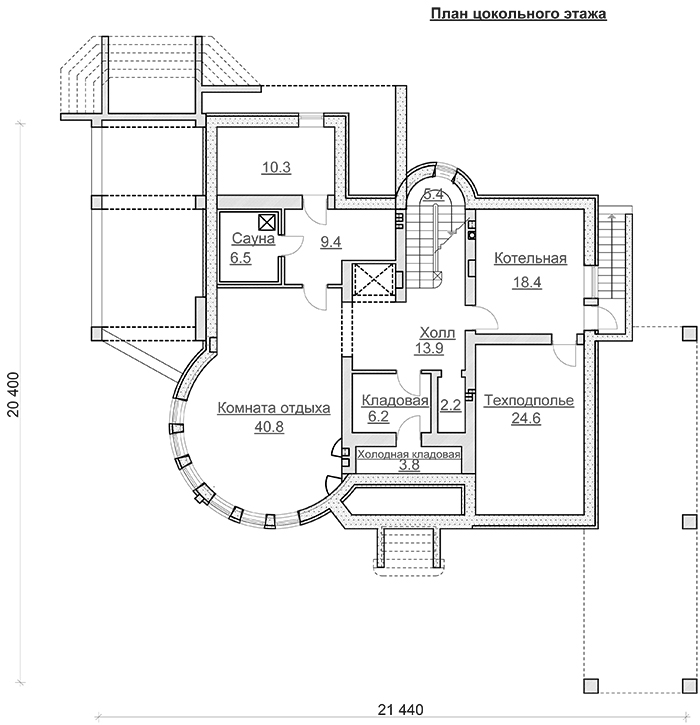
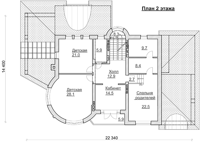
Поэтажные планы

Цокольный этаж

1-ый этаж

2-ой этаж

Разрез

Фасад 0-5

Фасад 5-0

Фасад A-Е

Фасад Е-A
Модели
|