|
Проекты : Г-3 "Тигор" (КО-613) гараж
Гараж на 2 а/м
Площади:
Общая площадь - 147 м2
Площадь застройки - 117,6 м2
Общее описание
Фундамент: Монолитная жб плита
Стены: Кирпичные 640 мм толщиной с утеплителем
Внутренние несущие - кирпичные 380 мм
Перекрытия: Сборные ж/б
Кровля: скатная, покрытие - мягкая черепица.
Наружная отделка стен: цветная фасадная штукатурка, детали - белая штукатурка
Наружная отделка цоколя: натуральный (искусственный) камень
Стоимость
Стоимость рабочей документации по проекту Г-3 "Тигор" гараж - 15 000 руб.
Также см. проект «КО-613 "Тигор"»
Поэтажные планы

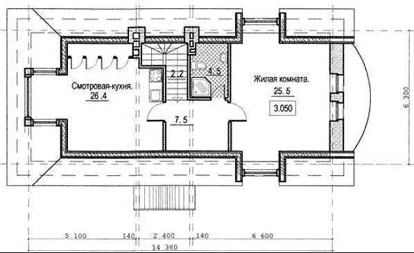
1-ый этаж

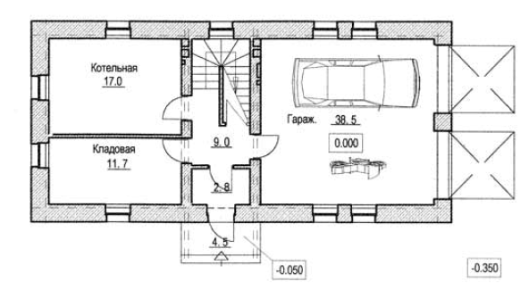
2-ой этаж

Фасад 1-4

Фасад А-Б и Б-А

Фасад 4-1

Фасад
Эскизы
|