|
Проекты : КО-605 "Энджи"
Общее описание
Общая площадь........................455,1 м2 Жилая площадь........................133,8 м2 Площадь застройки....................370,0 м2
Пояснительная записка
6-комнатный жилой дом с гаражом, сауной и бассейном был спроектирован для участка, имеющего форму неправильного четырехугольника, сто обусловило своеобразную конфигурацию здания, нестандартное объемно-планировочное решение. Фундаменты - ленточные сборные Перекрытия - сборные с монолитными участками Стены - кирпичные с утеплителем толщиной 640мм. : Перемычки - сборные (монолитные) Кровля - чердачная, скатная, с деревянными стропилами Покрытие - мягкая-, металлочерепица Лестницы - монолитные ж.б. с облицовкой природным камнем.
Стоимость
Стоимость рабочей документации по проекту КО-605 "Энджи" - 65 000 руб.
Поэтажные планы

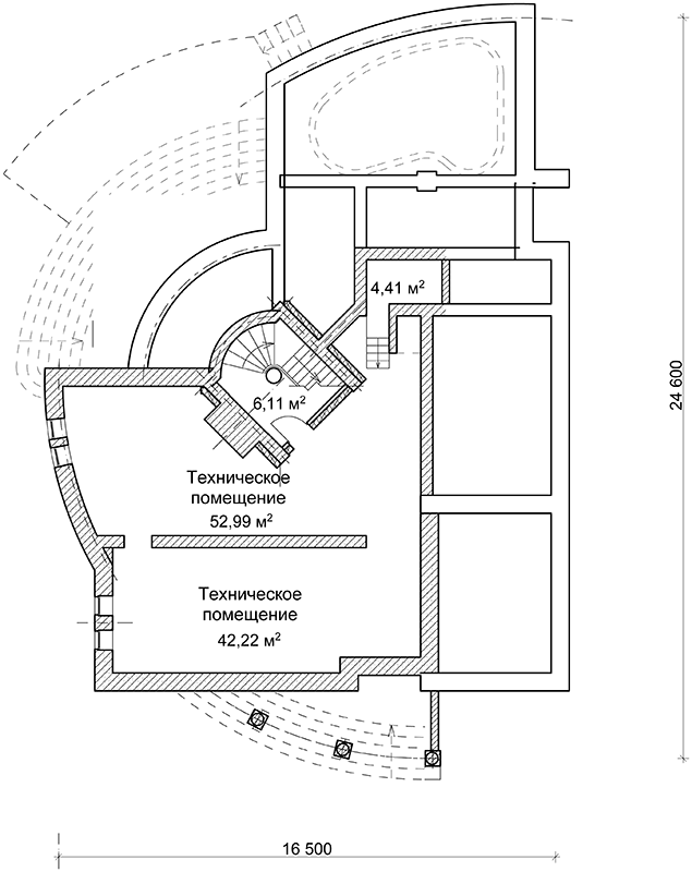
Цоколь

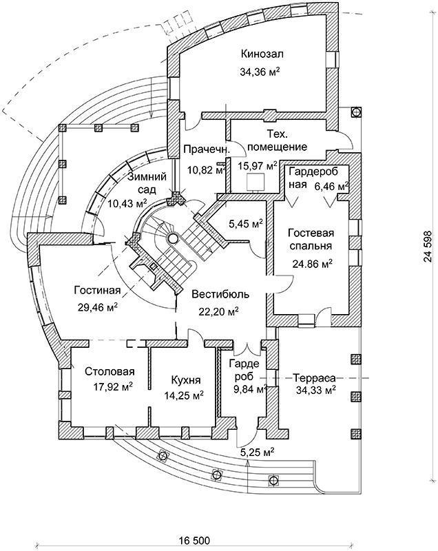
1-ый этаж

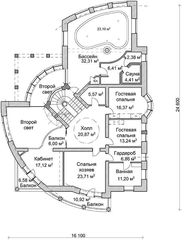
2-ой этаж

Мансарда

Фасад 1

Фасад 2

Фасад 3

Фасад 4
Фотографии
Интерьеры
|