|
Проекты : КО-520 "Андал-Мих"
Общая площадь (приведенная) - 260,1 м2
Жилая площадь - 80,7 м2
Площадь застройки - 197,4 м2
Общее описание
Фундамент – ленточный
Стены наружные - колодцевая кладка из полнотелого кирпича с наружной верстой
из облицовочного кирпича (120 мм.) толщ. 640 мм
Перекрытия – сборно-монолитные ж.б
Крыша – скатная, мансардная, с деревянными стропилами по металлическим балкам;
покрытие -- мягкая черепица
Разделы : АР, КР. (ОВ, ВК - каналы)
Стоимость
Стоимость рабочей документации по проекту КО-520 "Андал-Мих" - 49 000 руб.
Поэтажные планы

1-ый этаж

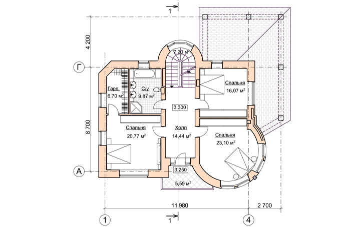
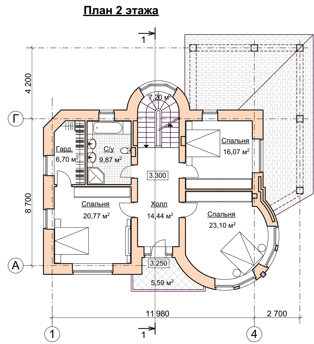
2-ой этаж

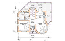
Мансарда

Разрез

Фасад 1

Фасад 2

Фасад 3

Фасад 4
Модель
|