|
Проекты : КО-518 "Совуш" + басс
Общее описание
Технико-экономические показатели:
Площадь здания (строительная) - 479,6 м2
Общая площадь (приведенная) - 455,4 м2
Площадь застройки - 355,4 м2
Этажность - 2
Пояснительная записка
Двухэтажный пятикомнатный жилой дом спроектирован на участке со слабовыраженным рельефом.
Здание поставлено так, чтобы максимальная часть участка оставалась свободной, а все основные помещения, были обращены на юго-запад.
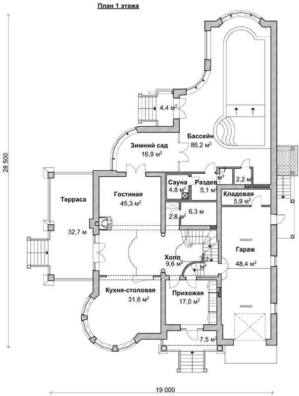
На первом этаже расположены: просторная гостиная с двухсветной частью, раскрывающаяся в неё кухня-столовая с полукруглым угловым эркером, гостевая спальня и небольшой санузел с душем. Гостиная связана через зимний сад с бассейном.
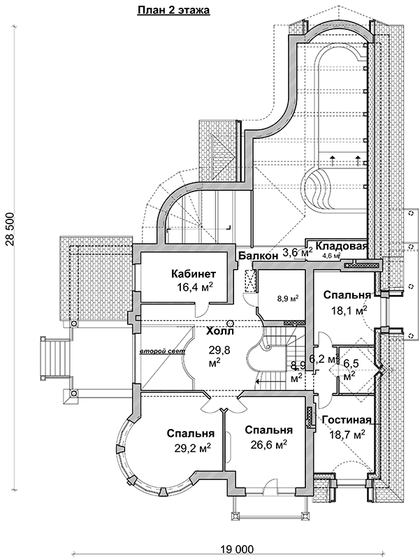
Второй этаж занимают три спальни с санузлами и гардеробной, а также размещенная на балконе, огибающем второй свет гостиной, библиотека. Спальня хозяев имеет выход на эксплуатируемую кровлю зимнего сада.
Стилистически дом близок к постмодернизму, имеющим прообраз европейские особняки начала ХХ века, что выражается в сочетании классицистических планировочных приёмов с остро современными объёмно-пространственными построениями.
В отделке здания предполагается применение естественного камня и каменной штукатурки."
Стоимость
Стоимость рабочей документации по проекту КО- 518 "Совуш+басс" - 58 000 руб.
Комментарий: Разделы: АР, КР (в разделе КР крыша разработана только над бассейном)
Поэтажные планы

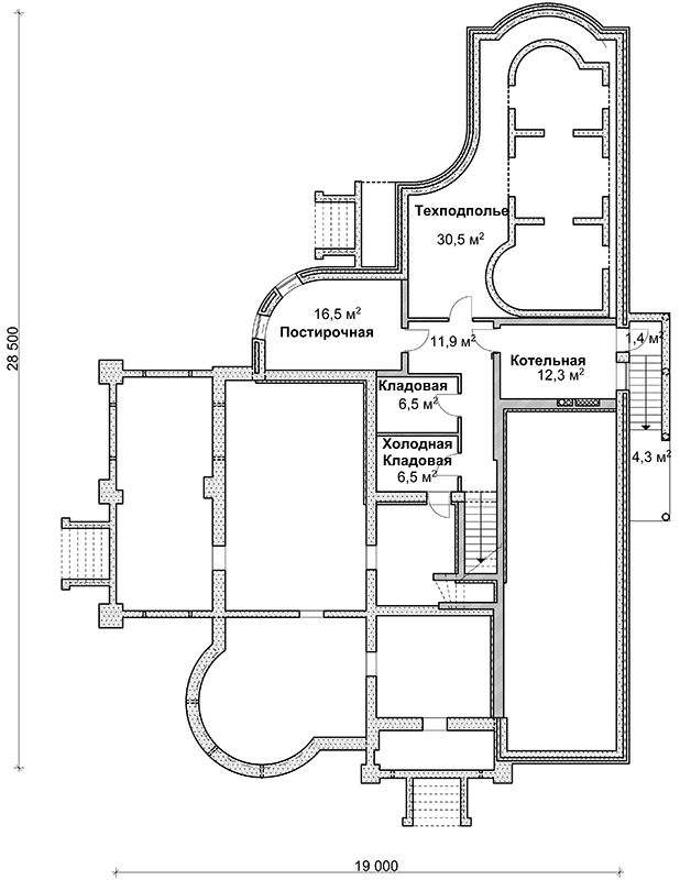
Цоколь

1-ый этаж

2-ой этаж
Модели
Фотографии
|