|
Проекты : КО-517 "Совенок"
Общее описание
Площадь здания (строительная) 479,6 м2
Общая площадь (приведённая) 455,4 м2
Площадь застройки 355,4 м2
Разработаны разделы: АР, КР (в разделе КР крыша разработана только над бассейном).
Стоимость
Стоимость рабочей документации по проекту КО-517 "Совенок" - 58 000 руб.
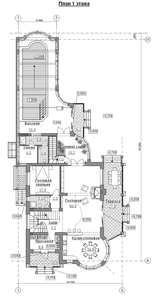
Поэтажные планы

Цоколь

1-ый этаж

2-ой этаж

Разрез 1-1
Модели
|