|
Проекты : КО-515 "КроСАр'06"
Общее описание
Общая площадь 775,7 м2 в том числе цокольный этаж 260 м2 Строительная площадь 864,4 м2 Площадь застройки 402,6 м2
Пояснительная записка
Фундаменты - монолитная плита Перекрытия - сборные с монолитными участками Стены - кирпичные с утеплителем толщиной 640мм. Перемычки - сборные (монолитные) Кровля - мансардная, скатная, с деревянными стропилами и металлическими элементами Покрытие - мягкая-, металлочерепица Лестницы - монолитные ж.б. с облицовкой природным камнем.
Стоимость
Стоимость рабочей документации по проекту КО-515 "КроСАр'06" - 78 000 руб.
Поэтажные планы

Цоколь

1-ый этаж

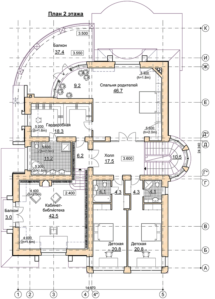
2-ой этаж

Разрез

Фасад 1

Фасад 2

Фасад 3

Фасад 4
Фотографии
|