|
Проекты : КО-514 "Ларбо"
Общее описание
Площадь здания (строительная) 466.9 м2
Общая площадь (приведённая) 381.2 м2
Площадь застройки 186.6 м2
Этажность 2
Стены наружные -- кирпич с утеплителем (640мм).
Стены внутренние несущие -- кирпичные 380 мм толщиной
Фундаменты -- монолитная ж/б плита
Перекрытия -- ж/б плиты
Крыша -- мансардная, совмещенная, скатная
Лестницы -- монолитные ж/б
Окна -- деревянные или деревоаллюминиевые с двухкамерными стеклопакетами
Двери -- деревянные
Наружная отделка -- цоколь: натуральный камень, 1 - 2 этажи: лицевой кирпич, штукатурка, детали - деревянные
Стоимость
Стоимость рабочей документации по проекту КО-514 "Ларбо" - 49 000 руб.
Комментарий: Нет раздела ЭО
Поэтажные планы

1-ый этаж

2-ой этаж

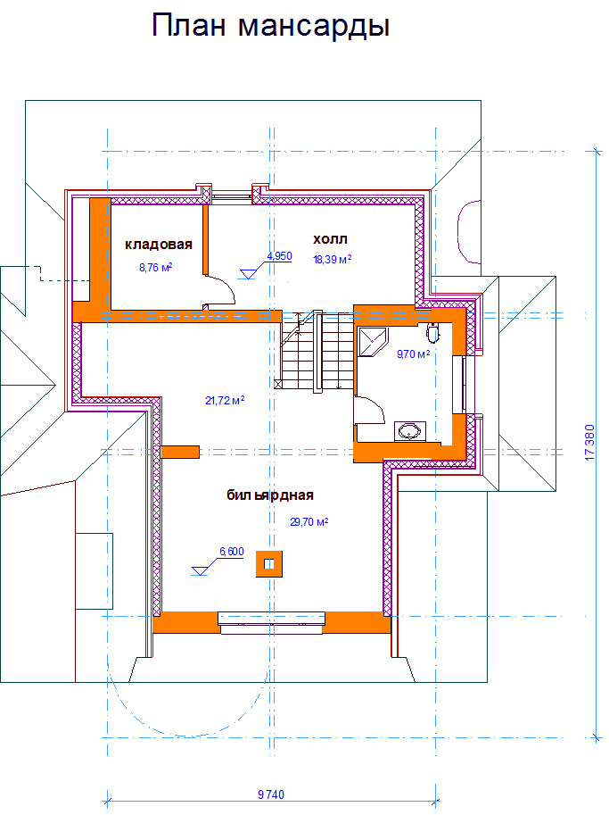
Мансарда

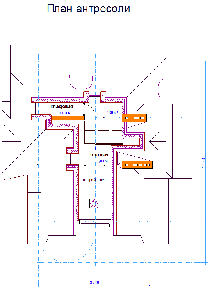
Антресоль

Фасад 1-3

Фасад А-Д

Фасад 3-1

Фасад Д-A
Эскиз
|