Лиза - Архитектурное бюро
 
О компании Услуги Проекты Фотогалерея Контакты Телефоны :
(495) 426-6233
8-916-671-4672
E-mail : arch.liza@mail.ru
Адрес:
м.Новоясеневская,
Новоясеневский проспект,
д.25
КАТАЛОГ ПРОЕКТОВ
Новинки
Новые проекты нашей студии...
Проекты домов

     До 400 м2
     От 600 м2

Проекты : КО-511 "Анж"

Общее описание

Площадь дома - 448.6 м2
Общая площадь (приведенная) - 397.2 м2
Площадь мансарды - 190.7 м2
Площадь застройки - 398.3 м2

Стены наружные - кирпичные с утеплителем, толщиной 640 мм
Стены внутренние несущие - кирпичные 380 мм толщиной
Перекрытия - сборно-монолитные
Крыша - мансардная, скатная, покрытие - метало- или мягкая черепица


Стоимость

Стоимость рабочей документации по проекту КО-511 "Анж" - 45 000 руб.
Комментарий: Нет раздела ЭО


Поэтажные планы

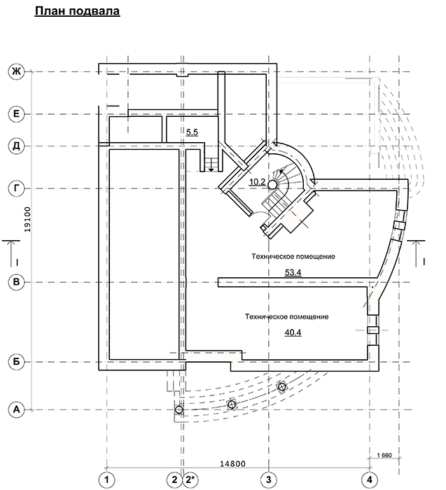
Цоколь
Цоколь
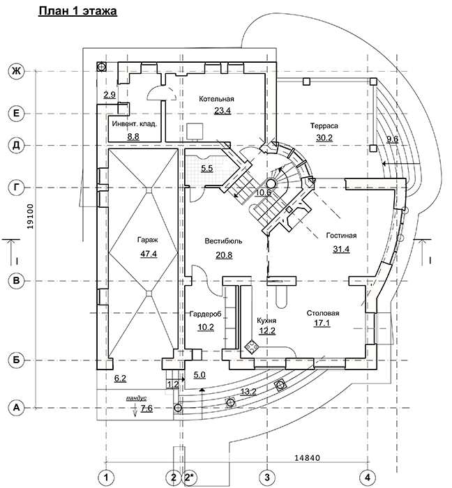
1-ый этаж
1-ый этаж
2-ой этаж
2-ой этаж
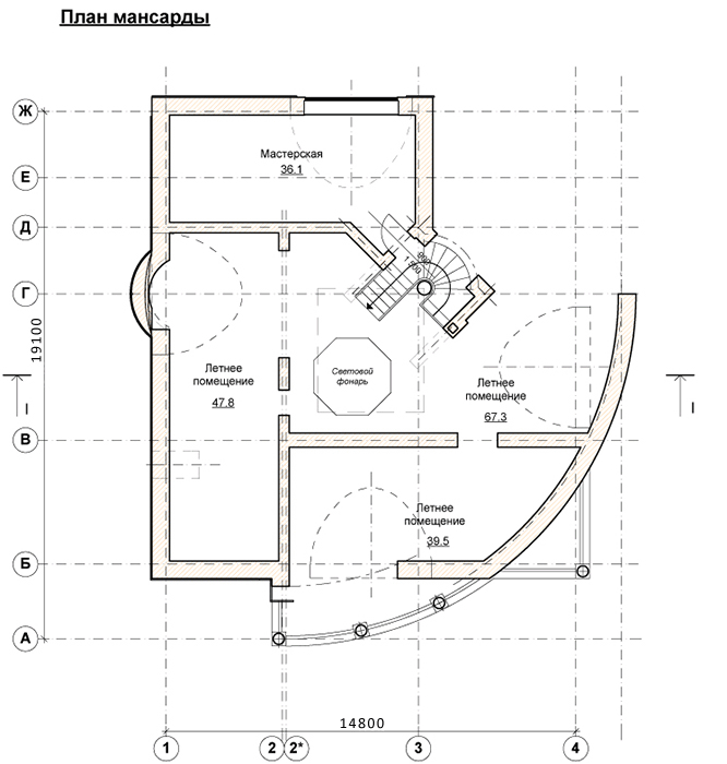
Мансарда
Мансарда
Фасад в осях 1-4
Фасад в осях 1-4
Фасад в осях 4-1
Фасад в осях 4-1
Фасад в осях А-Ж
Фасад в осях А-Ж
Фасад в осях Ж-А
Фасад в осях Ж-А
Разрез
Разрез




 

© 1992-2015, ООО «Арх. бюро "Лиза"»