|
Проекты : КО-507 "Флора-2"
Общее описание
Жилая площадь здания 69,6 м2
Общая площадь (приведённая) 165.1 м2
Площадь застройки 124,2 м2
Этажность 2
Стены наружные -- кирпич с утеплителем толщиной 510мм.
Стены внутренние несущие -- кирпичные 380 мм толщиной
Фундаменты -- сборный ж/б
Перекрытия -- сборные ж/б
Кровля -- скатная, чердачная (утеплённая), с деревянными стропилами по металлическим балкам
Лестницы -- монолитные ж/б
Окна -- деревянные или деревоаллюминиевые с двухкамерными стеклопакетами
Двери -- деревянные
Наружная отделка -- цоколь: натуральный камень, этажи: лицевой кирпич
Стоимость
Стоимость рабочей документации по проекту КО-507 "Флора-2" - 22 000 руб.
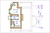
Поэтажные планы

Цоколь

1-ый этаж

2-ой этаж

Фасад 1

Фасад 2

Фасад 3
|