|
Проекты : КО-201 "Сапсан"
Общее описание
Общая площадь дома..................2 971,9 м2
Площадь застройки дома.................1 645,0 м2
Пояснительная записка
Тип фундамента - монолитная плита
Материал наружных стен - кирпич с утеплителем (640мм)
Перекрытия - сборные ж/б плиты
Крыша - мансардная
Покрытие кровли - гибкая-, металлочерепица
Наружная отделка стен - цветная декоративная штукатурка, декоративная фасадная плитка,
цоколь - натуральный (искусственный) камень.
Стоимость
Стоимость рабочей документации по проекту КО-201 "Сапсан" - 290 000 руб.
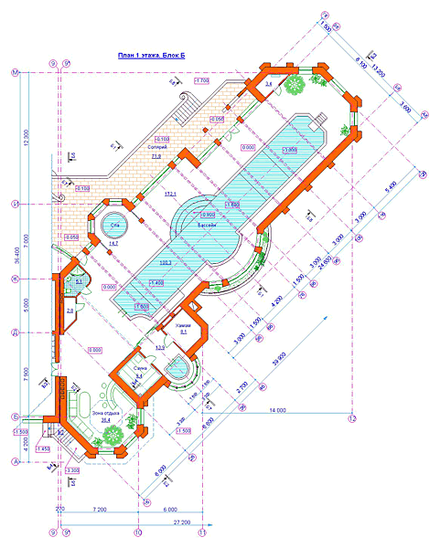
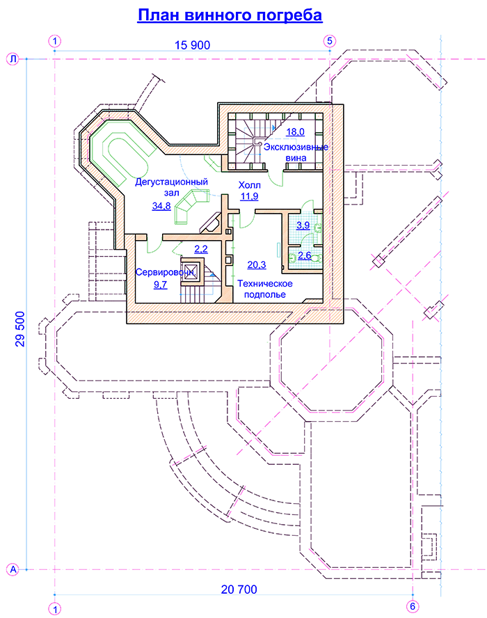
Поэтажные планы

Винный погреб

Цоколь. Блок А

1-ый этаж. Блок А

2-ой этаж. Блок А

Мансарда. Блок А

Разрез

Цоколь. Полный план.

1-ый этаж. Полный план.
Фасады
Фотографии
|