|
Проекты : КО-128 "Лани Мар"
Общее описание
Площадь здания (строительная) 1 385,40 м2
Общая площадь (приведённая) 1 256,60 м2
Площадь застройки 690,60 м2
Этажность 2
Стены наружные -- из поризованных блоков Poroterm 51 14, 32 NF с полнотелым кирпичом толщиной 640 мм.
Стены внутренние несущие -- кирпичные 380 мм толщиной
Фундаменты -- монолитная ж/б плита
Перекрытия -- монолитные ж/б
Кровля -- скатная, чердачная (утеплённая), с деревянными стропилами по металлическим балкам
Лестницы -- монолитные ж/б
Окна -- деревянные или деревоаллюминиевые с двухкамерными стеклопакетами
Двери -- деревянные
Наружная отделка -- цоколь: натуральный камень, 1 - 2 этажи: натуральный камень, декоративная фасадная плитка, декоративная штукатурка, мозаичная плитка
Стоимость
Стоимость рабочей документации по проекту КО-128 "Лани Мар" - 159 000 руб.
Комментарий: Разделы: АР, КР, ОВ и ВК
Поэтажные планы

Цоколь

1-ый этаж

2-ой этаж

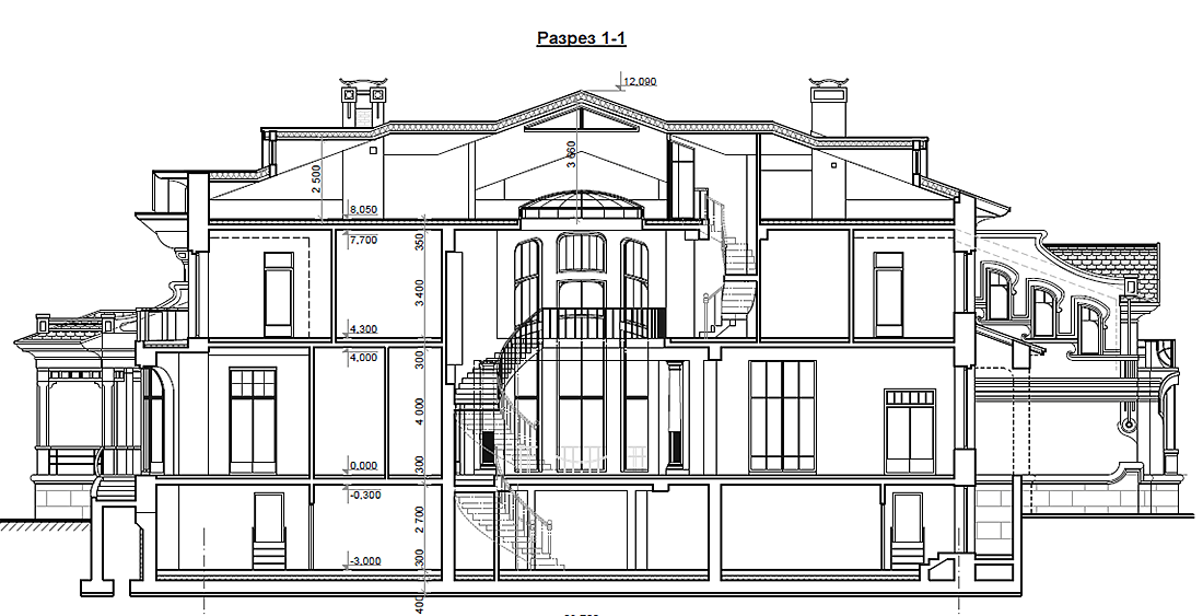
Разрез 1-1

Фасад 1-10

Фасад 10-1

Фасад A-M

Фасад M-A
Модели
Эскизы
|