|
Проекты : КО-127 "Лани-Каз"
Общее описание
Площадь здания (строительная) 1 168 м2
Общая площадь (приведённая) 1 029,6 м2
Площадь застройки 851,6 м2
Этажность 2
Стены наружные -- кирпичные 510 мм толщиной.
Стены внутренние несущие -- кирпичные 380 мм толщиной
Фундаменты -- монолитная ж/б плита
Перекрытия -- плиты ж/б с монолитными участками.
Кровля -- скатная, чердачная (утеплённая), с деревянными стропилами по металлическим балкам
Лестницы -- монолитные ж/б
Окна -- деревянные или деревоаллюминиевые с двухкамерными стеклопакетами
Двери -- деревянные
Наружная отделка -- цоколь: натуральный камень, 1 - 2 этажи: натуральный камень, декоративная фасадная плитка, декоративная штукатурка, мозаичная плитка
Стоимость
Стоимость рабочей документации по проекту КО-127 "Лани-Каз" - 130 000 руб.
Комментарий: Разделы: АР, КР. ОВ и ВК – каналы. br />
Поэтажные планы

1-ый этаж

2-ой этаж

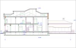
Разрез

Фасад 0-10

Фасад 10-0

Фасад А-П

Фасад П-А
Модели
|