|
Проекты : Г-6 "Лани-Ален" (КО-126) гараж
Общее описание
Площадь здания – 190м2
Стены наружные – кирпич 510 мм с утеплителем
Фундамент- монолитная ж/б плита
Перекрытия – монолитные
Также см. проект «КО-126 "Лани-Ален"»
Стоимость
Стоимость рабочей документации по проекту Г-6 "Лани-Ален" гараж - 30 000 руб.
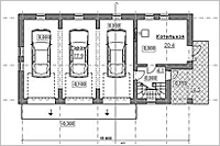
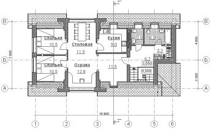
Поэтажные планы

1-ый этаж

Мансарда

Разрез 1-1
Фотографии
Модели
|