|
Проекты : КО-126 "Лани-Ален"
Общее описание
Основное здание:
Площадь здания (приведённая) 1547 м2
Площадь застройки 735 м2
Этажность 2
Фундаменты – монолитная ж/б плита.
Стены наружные -- кирпичные 640 мм толщиной с утеплителем
Перекрытия -- монолитная ж/б плита
Кровля -- скатная, мансардная (утеплённая), с деревянными стропилами по металлическим балкам
Наружная отделка – натуральный камень, декоративная фасадная плитка, декоративная штукатурка.
В данном проекте разработаны разделы:
АР "Архитектурное решение", ВК "Водоснабжение и канализация", ОВ «Отопление и вентиляция», КР "Конструктивное решение ".
Также см. проект «Г-6 "Лани-Ален" гараж»
Стоимость
Стоимость рабочей документации по проекту КО-126 "Лани-Ален" - 178 000 руб.
Комментарий: Разделы АР, КР ,ОВ, ВК
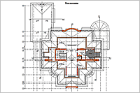
Поэтажные планы

Цоколь

1-ый этаж

2-ой этаж

Мансарда

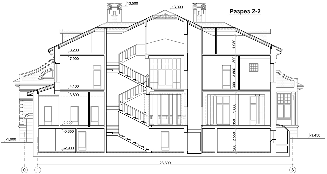
Разрез 2-2

Фасад 1-8

Фасад 8-1

Фасад A-M

Фасад M-A
Фотографии
Модели
|