|
Проекты : КО-124 "Сова"
Общее описание
Общая площадь.......................1 401.1 м2
Площадь застройки...................710.2 м2
Пояснительная записка
1. Фундамент -монолитная плита, монолитные стены
2. Перекрытия -сборные с монолитными участками
3. Стены -эффективная кирпичная кладка из глиняного кирпича толщ 640мм. :
внутренняя- толщ. 250 мм., утеплитель- минераловатные плиты "Rockwool" 100мм., воздушная прослойка 40 мм., наружная- толщ. 250мм.
4. Перемычки -сборные (монолитные)
5. Кровля -скатная, с деревянными стропилами. Покрытие -гибкая черепица "Тегола".
6. Фасады -цоколь- облицовка природным камнем, Cтены - 1 этаж - облицовка природным камнем, детали - штукатурка белого цвета, 2 этаж - штукатурка.
Стоимость
Стоимость рабочей документации по проекту КО-124 "Сова" - 145 000 руб.
Поэтажные планы

Цоколь

1-ый этаж

2-ой этаж

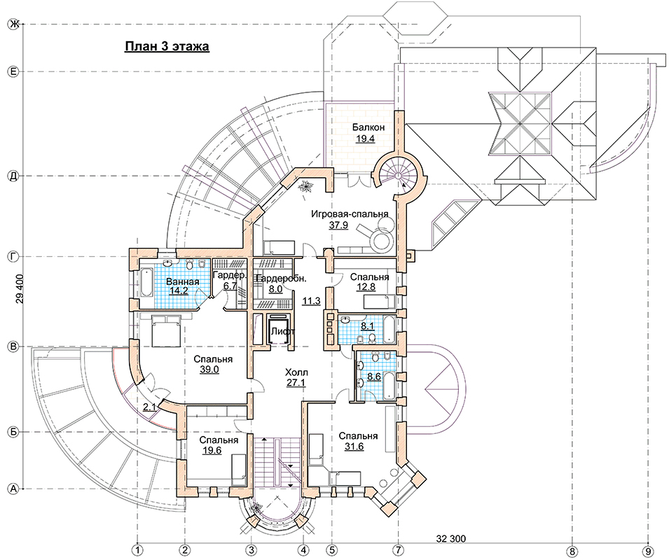
3-ий этаж

Мансарда
Фасады
Фотографии
Интерьеры
|