|
Проекты : КО-123 "Лани-2"
Общее описание
Общая площадь дома - 858.1 м2 Площадь застройки - 690.5 м2
Пояснительная записка
Тип фундамента - монолитная плита Материал наружных стен - кирпич с утеплителем (640мм) Перекрытия - монолитные ж/б Крыша - чердачная, скатная Покрытие кровли - мягкая-, металлочерепица Наружная отделка стен - цветная фасадная штукатурка, декоративная фасадная плитка, детали из натурального камня Цоколя - натуральный (искусственный) камень
Стоимость
Стоимость рабочей документации по проекту КО-123 "Лани-2" - 115 000 руб.
Комментарий: Нет разделов вентиляции и ЭО
Поэтажные планы

Цоколь

1-ый этаж

2-ой этаж

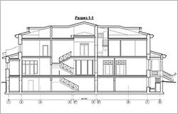
Разрез
Фотографии
Модели
|