|
Проекты : КО-121 "Лани"
Общее описание
Площадь дома 1 346.0 м2 Общая площадь (приведённая) 1 247.1 м2 Площадь застройки 701.3 м2
Тип фундамента - монолитная плита Материал наружных стен - кирпич с утеплителем Перекрытия - сборные Крыша - мансардная Покрытие кровли - мягкая или металлочерепица Наружная отделка стен - штукатурка Цоколя - натуральный (искусственный) камень
Стоимость
Стоимость рабочей документации по проекту КО-121 "Лани" - 154 000 руб.
Поэтажные планы

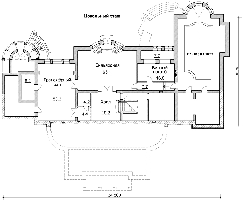
Цоколь

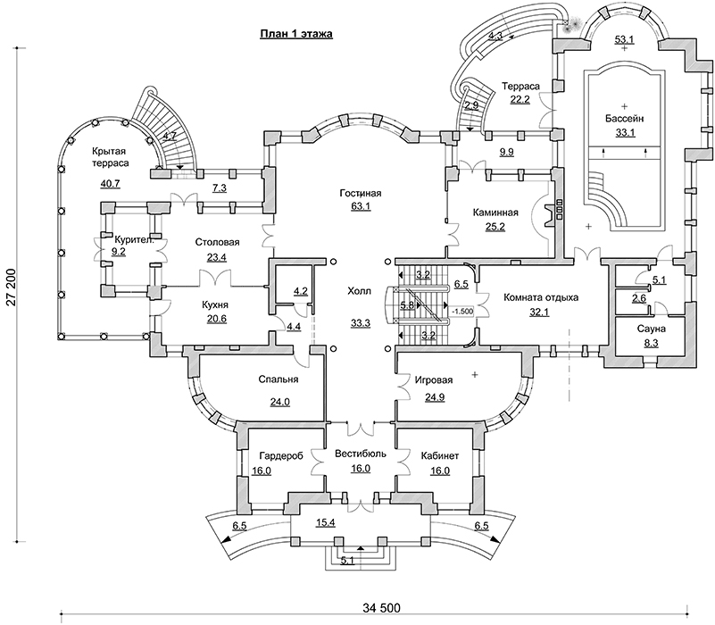
1-ый этаж

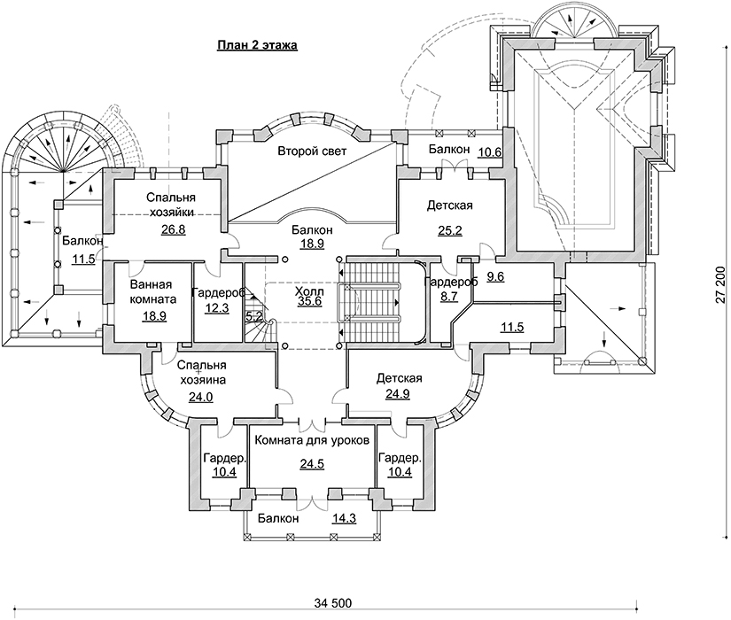
2-ой этаж

Фасад 1

Фасад 2

Фасад 3

Фасад 4
Фотографии
Модели
Эскизы
|