|
Проекты : КО-105 "Светокон"
Общее описание
Строительная площадь - дома 862.2 м2 - хозблока 234.1 м2 Общая площадь (приведённая) - дома 701.1 м2 - хозблока 219.5 м2
Площадь застройки 637.9+199.7 м2
Общая площадь пристраеваемого бассейна - 196, 8 м2
Дом
Фундаменты – монолитная плита
Стены наружные - кирпичные с утеплителем, толщиной 640 мм
Стены внутренние несущие – кирпичные 380 мм толщиной
Перекрытия – сборные
Крыша – чердачная, скатная, покрытие – метало- или мягкая черепица
Также см. проект «ОЗ-5 "Светокон" баня»
Также см. проект «Г-5 "Светокон" хозпостройка (гараж)»
Стоимость
Стоимость рабочей документации по проекту КО-105 "Светокон" (без учета бассейна и хозпостройки) - 135 000 руб.
Стоимость документации по пристраиваемому бассейну с галереей - 45 000 руб.
Стоимость документации по хозпостройке с галереей - 45 000 руб.
Поэтажные планы

1-ый этаж

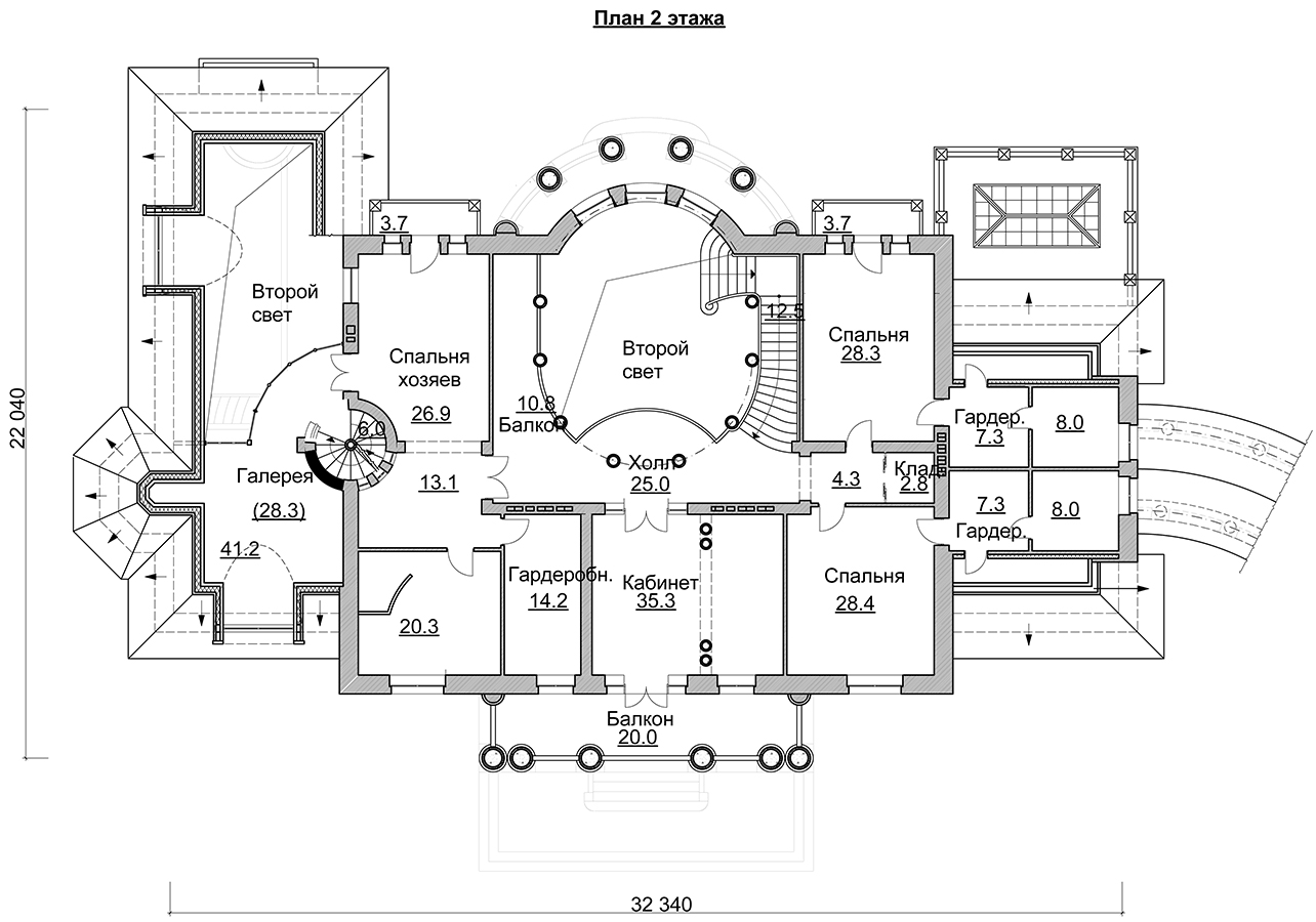
2-ой этаж

Вариант 1 этажа с бассейном

План пристраемого бассейна

Разрез 1-1

Фасад

Фасад в осях К-Аг

Фасад в осях 3г-1

Фасад в осях Аг-К
Модели
Фото
Эскизы
Интерьеры
|