|
Проекты : КО-103 "Светостар"
Общее описание
Площадь дома 854.5 м2 Общая площадь (приведённая) 768.9 м2 Площадь застройки 620.9 м2 Тип фундамента - монолитная плита Материал наружных стен - кирпич с утеплителем Перекрытия - сборные Крыша - мансардная Покрытие кровли - мягкая черепица или листовая медь Наружная отделка стен - штукатурка, фасадная плитка Цоколя - натуральный (искусственный) камень
Стоимость
Стоимость рабочей документации по проекту КО-103 "Светостар" - 73 000 руб.
Комментарий: Нет разделов ОВ, ВК, ЭО
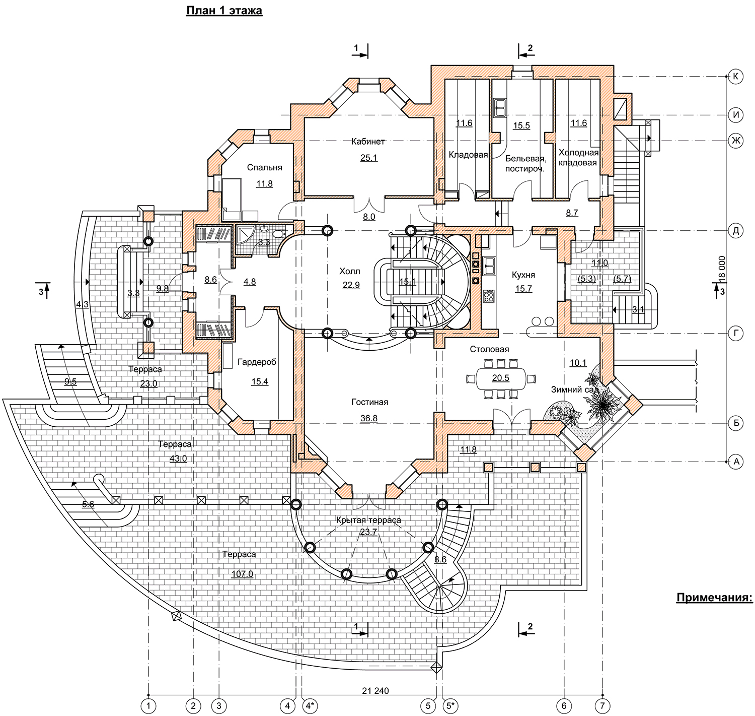
Поэтажные планы

Цоколь

1-ый этаж

2-ой этаж

Разрез

Фасад 1

Фасад 2

Фасад 3

Фасад 4
Фотографии
Модели
Интерьеры
|