|
Проекты : КО-102 "Мигов"
Общее описание
10-комнатный жилой дом Общая площадь - 586.7 м2 Площадь застройки - 487.5 м2
Тип фундамента - монолитная ж/б лента Материал наружных стен - керамические блоки Перекрытия - сборные Крыша - скатная Покрытие кровли - мягкая или металлочерепица Наружная отделка стен - фасадная плитка, детали- натуральный (искусственный) камень, штукатурка Цоколя - натуральный (искусственный) камень
Стоимость
Стоимость рабочей документации по проекту КО-102 "Мигов" - 64 000 руб.
Комментарий: Нет раздела ЭО и раздел ВК не в полном объеме
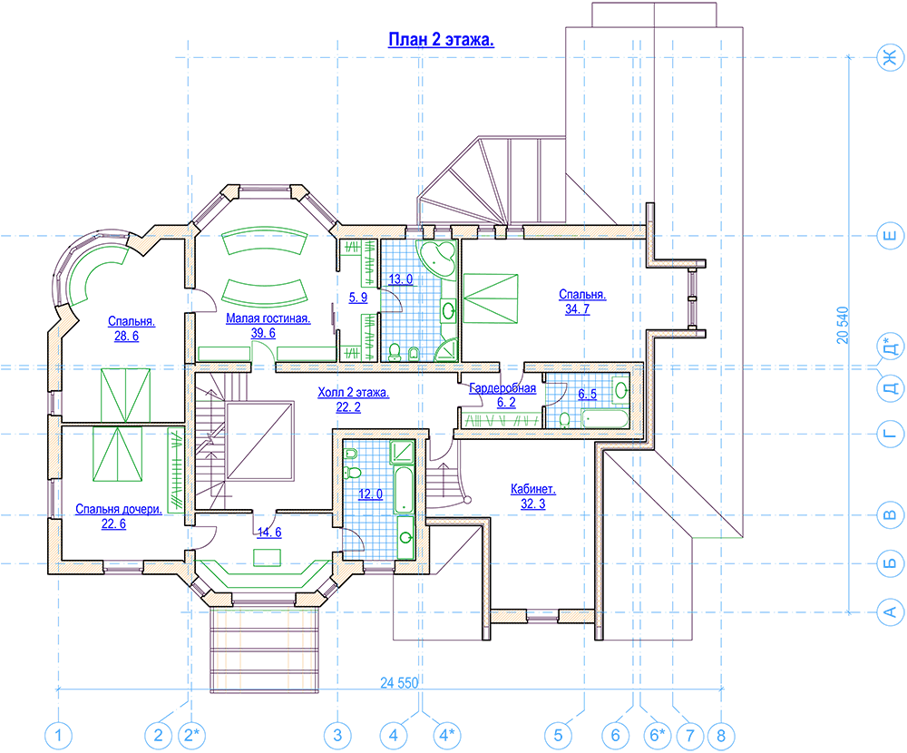
Поэтажные планы

1-ый этаж

2-ой этаж

Мансарда

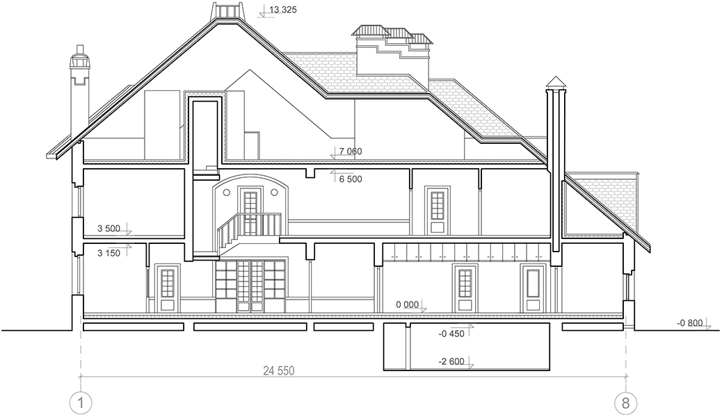
Разрез

Фасад 1-8

Фасад А-Ж

Фасад 8-1

Фасад Ж-A
Фотографии
|